Портфолио
Ипотека
Контакты
Проектирование и строительство
Блог
Услуги
Готовые дома с участком
Портфолио
О компании
Строим в Приморском крае, проектируем по всей России
Портфолио
Ипотека
Контакты
WhatsApp
Telegram
+7 (423) 201-76-76
Калькулятор
Проектирование и строительство
Блог
Услуги
Готовые дома с участком
Портфолио
О компании
Главная
Проектирование и строительство
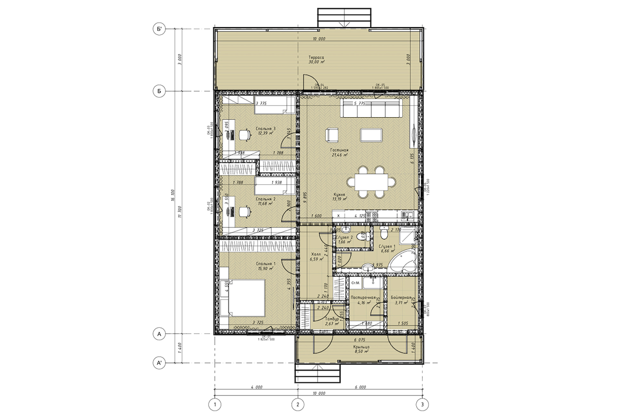
Дом МК-1.102
Дом МК-1.102
Характеристики
Общая площадь
102 м
2
Площадь застройки
141 м
2
Жилая площадь
102 м
2
Размеры дома
10 х 16.1 м
Количество этажей
1
Количество комнат
4
Описание проекта
Узнать стоимость строительства
Похожие проекты домов
Дом МК - 2.105
деревянный каркас
104 м
2
8,59 х 8,89 м
Дом МК-1.87
газоблок
87 м
2
7.2 х 11.4 м
Дом МК-2.153
газоблок
керамзитблок
теплая керамика
керамоблок
арбалит
силикатный блок
полистеролбетон
теплоблок
153 м
2
8.6 х 8.9 м
Дом МК-1.149
газоблок
керамзитблок
теплая керамика
керамоблок
арбалит
силикатный блок
полистеролбетон
теплоблок
149.08 м
2
15.7 х 12.8 м
Рассчитайте стоимость вашего дома
Наши специалисты помогут Вам оценить стоимость строительства, получите предварительную оценку!
Плита фундамента
Толщина (мм)
250 мм
Коробка дома
Выберите
Каркас
Утепление стен
Выберите
200 мм
Перекрытия
Выберите
Деревянные
Этажность
Выберите
1 этаж
2 этаж
Перегородки
Кровля
Выберите
Мягкая черепица
Утепление
Выберите
Теплая кровля
Площадь кровли
Получить расчёт
Хотите получить бесплатную консультацию?
Свяжитесь с нами по телефону +7 (423) 201-76-76 или через форму на сайте
Записаться на консультацию